Να κατασκευάσει έναν τεράστιο σταθμό φόρτισης (Supercharger) στη δυτική πλευρά του Λος Άντζελες, οραματίζεται ο Έλον Μασκ, σύμφωνα με τον ιστότοπο Teslarati. Ωστόσο, ο κόμβος δεν θα είναι μόνο για τη φόρτιση ηλεκτρικών οχημάτων. Θα διαθέτει επίσης εστιατόριο τύπου παλιού αμερικανικού diner και έναν κινηματογράφο drive-in.
Έχουν περάσει πάνω από δύο χρόνια από τότε που ο Μασκ δημοσίευσε στο τότε Twitter (νυν Χ) ότι θέλει να χτίσει έναν «μεγάλο» σταθμό Supercharger με «50’s diner & 100 καλύτερα κλιπ ταινιών να παίζουν επίσης» στη Santa Monica. Η Tesla υπέβαλε την αίτηση για το έργο τον Νοέμβριο του περασμένου έτους και έλαβε έγκριση (και άδεια) από την πόλη του Λος Άντζελες στις 18 Ιουλίου, σύμφωνα με την ιστοσελίδα.
Η αρχική επιθεώρηση βαθμολόγησης ολοκληρώθηκε και εγκρίθηκε νωρίτερα αυτό το μήνα, πράγμα που σημαίνει ότι το έργο, το οποίο θα βρίσκεται τώρα στο Δυτικό Χόλιγουντ, μπορεί τώρα να προχωρήσει.

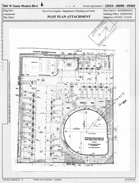
Κάτοψη από τα σχέδια που κατατέθηκαν στον Δήμο Λος Άντζελες
Ο σταθμός, ο οποίος σύμφωνα με τα έγγραφα θα ονομάζεται Diner and Drive-In Movie Supercharger, φέρεται να διαθέτει 32 σταθμούς φόρτισης. Το πιο συναρπαστικό, ωστόσο, είναι ότι θα φιλοξενήσει επίσης ένα εστιατόριο σε ρετρό στυλ με διάφορες επιλογές φαγητού και καθίσματα στην ταράτσα, καθώς και δύο κινηματογραφικές αίθουσες που θα προβάλλουν μια επιλογή από κλιπ από διάσημες ταινίες. Αν αναρωτιέστε γιατί θα προβάλλουν κλιπ αντί για πλήρεις ταινίες, είναι επειδή οι υπερφορτιστές του Μασκ μπορούν να προσθέσουν εμβέλεια άνω των 300 χιλιομέτρων σε μόλις 15 λεπτά. Δεν είναι σαφές πώς θα μοιάζει ο κόμβος, αλλά η παρουσίαση της εταιρείας για την Ημέρα Επενδυτών το 2023 περιελάμβανε μια απεικόνιση που μοιάζει να ταιριάζει με την περιγραφή.
2.000 στις ΗΠΑ
Τα τελευταία δύο χρόνια, έχει γίνει σαφές ότι η Tesla είναι αποφασισμένη να δημιουργήσει το δικό της δίκτυο Supercharger τόσο στις ΗΠΑ όσο και στο εξωτερικό. Η εταιρεία διαθέτει επί του παρόντος 17.000 σημεία φόρτισης σε σχεδόν 2.000 σταθμούς στην Αμερική, σύμφωνα με Yahoo! Finance. Φέτος, η εταιρεία έκλεισε συμφωνίες με πολλές ανταγωνιστικές αυτοκινητοβιομηχανίες, συμπεριλαμβανομένης της Ford, που θα επιτρέψουν στα ηλεκτρικά τους αυτοκίνητα να χρησιμοποιούν τους φορτιστές της.
Η Tesla δεν είναι η μόνη αυτοκινητοβιομηχανία που εργάζεται για τη δημιουργία του δικού της δικτύου φόρτισης. Η Mercedes-Benz, η Porsche και η Rivian έχουν επίσης ανακοινώσει σχέδια για δικούς τους κόμβους. Τον περασμένο μήνα, η Porsche —της οποίας η Taycan ξεπέρασε τις πωλήσεις της 911 το 2021—άνοιξε έναν σταθμό φόρτισης στη γερμανική πόλη Bingen am Rhein που περιλαμβάνει ένα πολυτελές σαλόνι αναμονής.
Διαβάστε ακόμη
Ο «ιός» από την Κίνα απειλεί την παγκόσμια οικονομία (πίνακες)
Σ. Κόκκαλης: Η INTRALOT προχωρά σε συνολικό σχέδιο κεφαλαιακής αναδιάρθρωσης
Ελβετία: «Απεταξάμην» τον τίτλο του πλυντηρίου μαύρου χρήματος – Νέες μεταρρυθμίσεις
Για όλες τις υπόλοιπες ειδήσεις της επικαιρότητας μπορείτε να επισκεφτείτε το Πρώτο ΘΕΜΑ
Σχολίασε εδώ
Για να σχολιάσεις, χρησιμοποίησε ένα ψευδώνυμο.